fbpx

woningaanbod

Hoofdfoto
  • Soort Eengezinswoning
  • Type Vrijstaande woning
  • Bouwjaar 1993
  • Woonoppervlakte 139 m2
  • Perceeloppervlakte 508 m2
  • Inhoud 758 m3
  • Aantal kamers 4
  • Aantal slaapkamers 3
  • Aantal badkamers 2
  • Liggingen Aan water, In woonwijk, Vrij uitzicht, Aan vaarwater
  • Koopprijs € 659.000,- k.k.
  • Status Beschikbaar
  • Aanvaarding In overleg
  • Energieklasse C
  • Verwarming CV ketel, Vloerverwarming gedeeltelijk
  • C.V.-Ketel Nefit
  • Isolatie Dakisolatie, Muurisolatie, Vloerisolatie, Dubbelglas
  • Combiketel Nee
  • Parkeer faciliteiten Op eigen terrein
  • Garage Aangebouwd steen
  • Capaciteit 1
  • Garages 1
Download brochure

Beschrijving Atsmastate 39

Aan het rustige vaarwater, in een groene en ruime opgezette woonwijk in Leeuwarden, staat deze bijzondere vrijstaande woning aan de Atsmastate 39. Een huis dat in 1993 gebouwd is en met zorg werd ontworpen door architect Peter Walon, in opdracht van de huidige eigenaar die zelf bouwkundig ingenieur is. Dat zie je terug in alles: de slimme indeling, de sterke lijnen in het ontwerp en vooral de manier waarop licht, tuin en water onderdeel van het wonen zijn geworden.

Vanaf de straat oogt de woning vrij ingetogen. Een beetje gesloten zelfs. Maar dat verandert direct zodra je binnenstapt. Via het tochtportaal kom je in de hal en wordt meteen duidelijk dat dit geen standaard woning is. De hoogte, de zichtlijnen en de grote raampartijen zorgen direct voor een ruimtelijk en licht gevoel.

De woonkamer vormt het hart van het huis. Hier spelen licht en uitzicht de hoofdrol. Grote raampartijen zorgen voor een prachtig zicht op de tuin en het water, terwijl de zon gedurende de dag op verschillende manieren naar binnen valt. De houtkachel zorgt voor extra sfeer en warmte op koelere dagen. Dankzij de dubbele openslaande deuren loopt binnen hier moeiteloos over in buiten.

De keuken ligt aan de woonkamer en heeft daarnaast een fijne plek voor de eettafel bij het raam. Ook hier is veel daglicht en uitzicht op de tuin. De keuken is netjes onderhouden en van goede kwaliteit.

Wat deze woning extra prettig maakt, is dat gelijkvloers wonen hier heel goed mogelijk is. Op de begane grond ligt een ruime slaapkamer die zicht bewust aan de noordzijde van de woning zit. Een fijne plek om te slapen, met voldoende licht en rust. Direct daarnaast ligt de badkamer met ligbad, inloopdouche, toilet en wastafel.

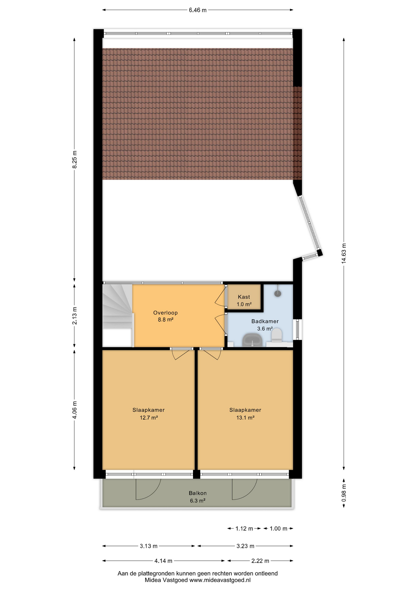
Op de verdieping zet het bijzondere ontwerp zich voort. Op de overloop ontstaat een mooie doorkijk naar beneden en naar de grote raampartijen waardoor ook hier het licht volop aanwezig is. Hier bevinden zicht twee ruime slaapkamers die slim in het ontwerp zijn geplaatst en beide toegang hebben tot een gedeeld balkon. Daarnaast is er een tweede badkamer met toilet en wastafel.

Achter de garage bevindt zich nog een verrassend ruime bijkeuken. Een praktische ruimte voor opslag of huishoudelijke functies, maar ook uitstekend geschikt als werkruimte, atelier of kantoor aan huis.

Rondom de woning ligt een royale tuin op een perceel van 508 m2. Door de ligging aan het vaarwater, de verschillende terrassen en de beplanting zijn er altijd fijne plekken om te zitten. In de zon of juist in de schaduw, met uitzicht over het water en volop privacy.

Pluspunten aan de woning
- Vrijstaande architectenwoning ontworpen door Peter Walon
- Gelegen aan het vaarwater met veel privacy
- Woonoppervlakte van 139 m2 op een perceel van 508 m2
- Levensloopbestendig met slaapkamer en badkamer op de begane grond
- Grote raampartijen en prachtig lichtinval door het hele huis
- Vloerverwarming op de begane grond en een sfeervolle houtkachel
- Extra bijkeuken/werkruimte achter de garage

Kortom: een bijzondere woning waar architectuur, licht en natuur samenkomen. Een plek waar je elke dag opnieuw merkt hoe doordacht dit huis is ontworpen. Nieuwsgierig geworden?

Video

Plattegrond

Waar op de kaart

Streetview

Details Foto's Beschrijving Video Plattegrond Kaart

©2023 Marquant
Privacy statement / Disclaimer / Partners / Samenwerkingen